Thiết Kế Nhà Lô Đẹp Tinh Tế - Mặt Tiền 5M - 3 Tầng
1. Kích thước đất 5x18m
2. Chủ đầu tư : Mr Nguyễn Trãi
3. Địa điểm XD : Đại Phúc - Thành phố Bắc Ninh
I/Công năng mặt bằng bao gồm :
Tầng 1 : Không gian Shop bán Hàng
Tầng Lửng: Phòng Khách - Phòng Bếp Ăn
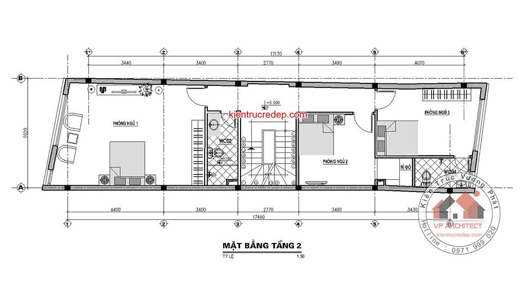
Tầng 2 : 3 Phòng Ngủ
Tầng 3 : 2 Phòng ngủ + Sân phơi
II/ Giải Pháp Kiến Trúc
Mặt tiền thiết kế theo phong cách kiến trúc hiện đại với các khối mảng khối đan xen hài hòa tạo nên vẻ đẹp tinh tế của công trình
Tầng 1 : Ốp đá Granite tự nhiên với khung kính lớn làm không gian Shop bán hàng thật thoáng và rộng
Tầng 2 với những ô kính lớn kết hợp đan xem màu sắc sáng tối giữa các mảng khối tạo , các kiến trúc sư trang trí thêm chút ánh sáng đèn rọi ở chính giữa mảng tường lớn làm điểm nhấn cho kiến trúc mặt tiền
Tầng 3 : tâm điểm của mặt tiền với ô kính lớn tô điểm và là nới đc chiếu sáng rực rỡ tạo điểm nhấn sáng nhất cho công trình
Mặt Bằng Tầng 1 : Thoáng rộng , phục vụ nhu cầu kinh doanh của gia chủ

Tầng Lửng: là nơi dành cho không gian sinh hoạt của gia đình

Tầng 2: là nơi nghỉ ngơi của gia chủ

Tầng 3 Là khoảng xanh sân vườn : tạo nên không gian trong lành cho ngôi nhà

Vượng Phát Architecture - Hotline : 0971 999 020
Thiết Kế Kiến Trúc, Thiết Kế - Thi Công Nội Thất Trọn Gói, DỊch Vụ Cấp Phép XD