Mẫu Nhà ống 4 tầng Hiện đại - Mặt tiền 5m
1.Kích thước : 5x22m
2.Chủ đầu tư : Mr. Phạm Khánh Hùng
3. Địa điểm xây dựng : Quận 1 - Tp. Hồ Chí Minh
I/ Công Năng Mặt Bằng :
Tầng 1 : 1 Gara + 1 phòng khách + 1 phòng SHC + 1 Phòng bếp,ăn + Phòng giặt và Wc + Vườn cảnh
Tầng 2 : 2 phòng ngủ + Wc
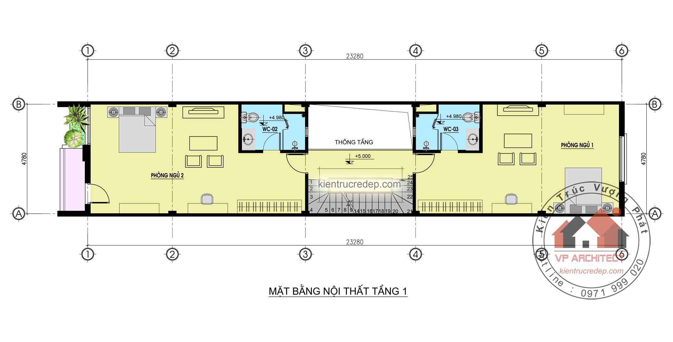
Tầng 3 : 2 phòng ngủ + Wc
Tầng 4 : Phòng thờ + Sân Phơi
Mặt tiền tầng 1 ốp gạch màu ghi, các tầng trên đan xem giữa các khối màu ghi nhạt kết hợp với khối màu nâu của gạch inax.Ban công lan can bằng kính cường lực hiện đại kết hợp với các mảng xanh của bồn hoa là nơi chủ nhà có thể trang trí cho ngôi nhà của mình trở lên có điểm nhấn.

Với diện tích khá lý tưởng, các KTS của Vượng Phát bố trí 1 phần không gian xanh rất lý tưởng ở khoảng giữa nhà với giếng trời thông gió rộng,làm cho không gian thoáng và đầy đủ ánh sáng tự nhiên.
Các không gian phòng tương đối rộng với đầu đủ tiện nghi. Đặc biệt việc bố trí vị trí các phòng chức năng như vệ sịnh phòng ngủ được tính toán và bố trí hợp theo mệnh phong thủy của gia chủ. 
Khi quý bạn cần thiết kế nhà thuận theo phong thủy, đẹp về kiến trúc xin hay gọi:
Lê Gia Arch - Interior Design - Thiết kế kiến trúc phong thủy nhà phố , biệt thự
Hotline : 0971999020
Legiakts.vn : THIẾT KẾ HOÀN HẢO - THI CÔNG ĐẢM BẢO!