Thiết kế biệt thự cổ điển 3 tầng - Mái thái:
1. Chủ đầu tư : Anh Phương 2.Địa điểm xây dựng : Gia Lâm - Hà Nội
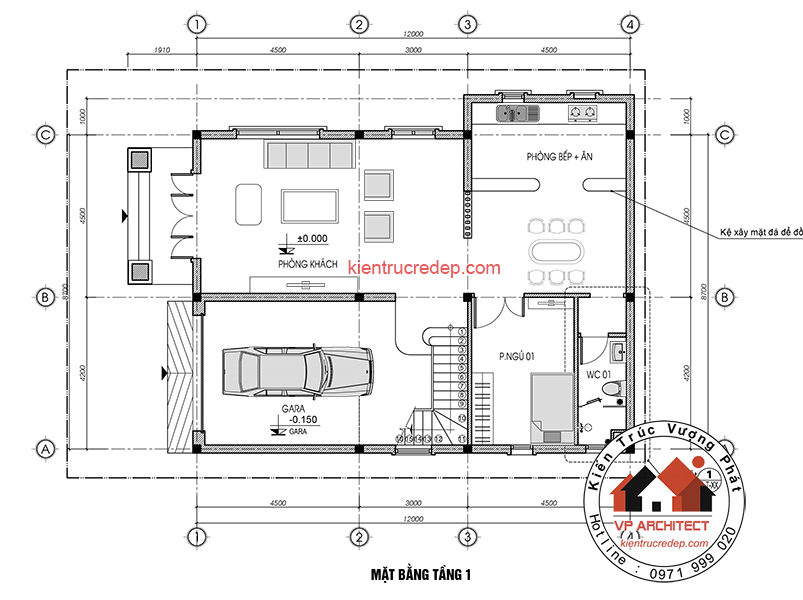
3. Kích thước xây dựng : 8,7 x 12m 4. Diện tích sử dụng : 320m2
I/ Công năng mặt bằng :
- Tầng 1 : 1 Phòng khách + 1 phòng bếp, phòng ăn + 1 Phòng ngủ + 1 Wc
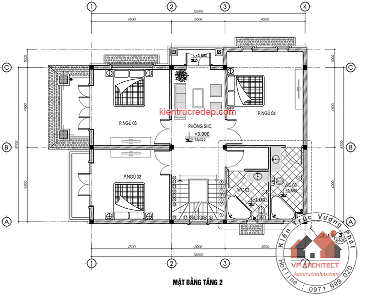
- Tầng 2 : 3 Phòng ngủ + 1 phòng SHC + 2 WC
- Tầng 3 : 1 Phòng thờ + 1 phòng ngủ + 1 Sân chơi + 1 WC
II/ GIải pháp kiến trúc của biệt thự:
Mẫu biệt thự cổ điển mái thái được nhiều người yêu thích - các đường nét phào chỉ tỷ mỷ tạo nên vẻ đẹp và phong cách rất riêng cho ngôi nhà

Mặt bằng tầng 1: Với không gian rộng nối niền phòng bếp và phòng khách

Mặt bằng tầng 2
